Descrizione dell'immobile
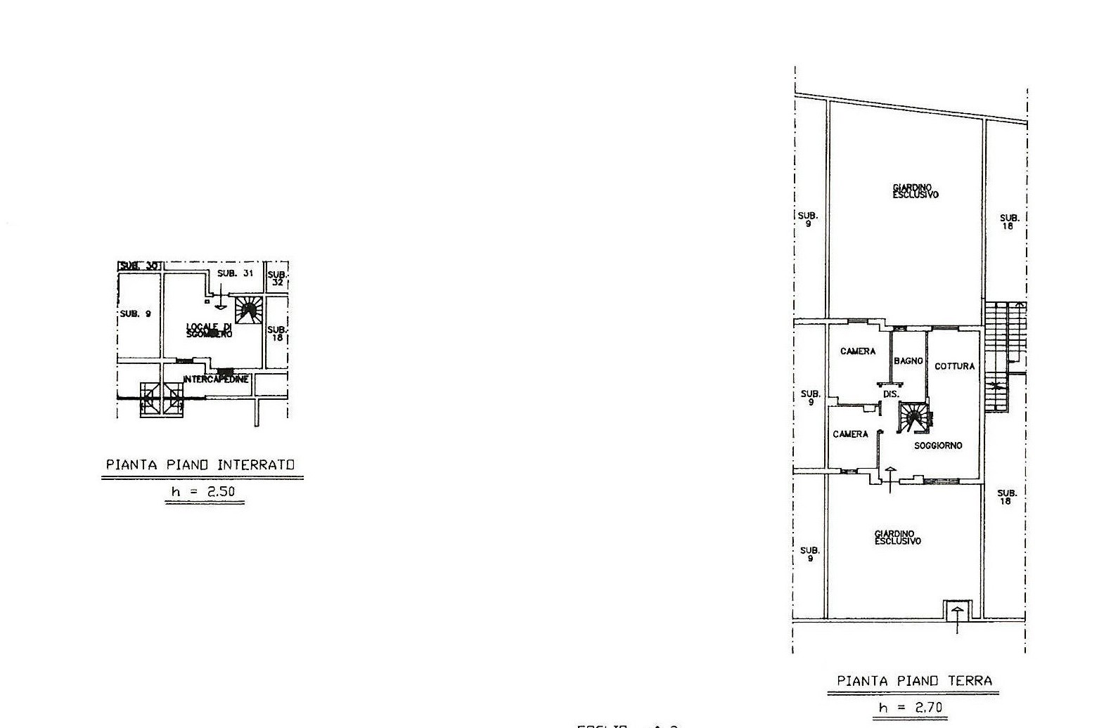
Appartamento in villa con giardino privato in zona tranquilla a Treviolo In una delle zone più tranquille e residenziali di Treviolo, ma al tempo stesso comoda per tutti i principali servizi, proponiamo in vendita un elegante appartamento in villa situato in una piccola palazzina indipendente con poche spese condominiali. L’immobile gode di ingresso indipendente tramite cancello privato e un curato vialetto esclusivo che conduce all’ingresso dell’abitazione. L’intera proprietà è circondata da un ampio giardino fronte-retro, molto ben tenuto e riccamente piantumato, ideale per momenti di relax all’aperto, giochi per bambini o cene in compagnia. Completa il giardino una pratica casetta per gli attrezzi. All’interno troviamo una zona giorno ampia e luminosa, composta da living con cucina a vista, con la possibilità di chiudere la cucina e renderla un ambiente separato e abitabile. Un comodo disimpegno notte conduce a due spaziose camere da letto e a un bagno finestrato con vasca. Tramite una comoda scala interna si accede al piano seminterrato, dove si sviluppa una grande taverna completamente arredata con seconda cucina, ideale per accogliere ospiti o come spazio conviviale. L'accesso alla taverna può avvenire anche direttamente dal giardino rendendola un'unità autonoma ideale per accogliere gli ospiti. A completamento troviamo un piccolo studio, un bagno/lavanderia e un box molto ampio con spazio di manovra comodo. Tra le dotazioni e finiture si segnalano: • Riscaldamento autonomo che garantisce spese condominiali contenute • Impianto di climatizzazione • Impianto di allarme • Porta blindata • Serramenti con doppi vetri e zanzariere • Finiture di pregio che conferiscono eleganza e comfort all’abitazione Una soluzione abitativa ideale per chi cerca indipendenza, tranquillità e qualità, senza rinunciare alla comodità dei servizi a portata di mano. Per visionarlo potete scriverci direttamente tramite WhatsApp al 334/31.31.229 oppure chiamare al numero fisso allo 035/46.15.15- Prezzo: € 290.000
- Metratura: 180 mq
- Anno: 2000
- Piano: t su 1
- Stato interno: Originale / Abitabile
- Locali: 3
- Cucina: Semi-abitabile
- Bagni: 1
- Box: Box doppio
- Riscaldamento: Autonomo
- Aria condizionata: Sì
- Spese condominiali (mese): € 42
- Classe energetica: C
- IPE: 185 kWh/mqa
Cerca il tuo immobile 

