Descrizione dell'immobile
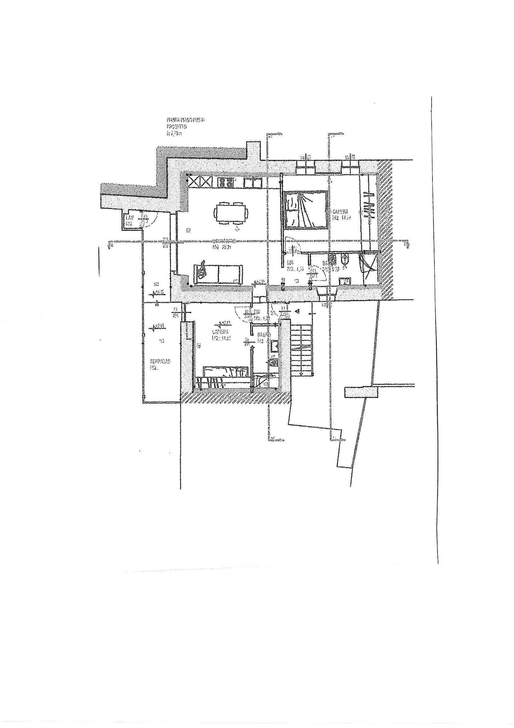
Ponte San Pietro a Locate nel centro storico, appartamento completamente ristrutturato a nuovo con ottime finiture in porzione di casa di sole 3 unità senza spese condominiali. L'appartamento si trova al piano primo ed è composto da ingresso da loggia di proprietà, grande soggiorno con angolo cottura molto luminoso con accesso al terrazzo vivibile esposto ad ovest (vista tramonto) dove potrete pranzare e cenare abbagliati dal sole. Due zone notte la principale con camera matrimoniale di circa 20 mq dove potrete mettere comodamente un altro letto o culla, bagno ampio finestrato, nell'altra zona notte suite con bagno in camera. Sul terrazzo è presente un vano ad uso lavanderia o ripostiglio. Riscaldamento autonomo, posto auto coperti di proprietà. Consegna prevista fine 2025. Prima di scegliere altre soluzioni vieni a visionarlo. Per fissare un appuntamento scriveteci direttamente tramite WhatsApp al 334/31.31.229 oppure chiamate allo 035/46.15.15- Prezzo: € 139.000
- Metratura: 85 mq
- Piano: 1 su 1
- Stato interno: Ristrutturato
- Locali: 3
- Cucina: Angolo cottura
- Bagni: 2
- Terrazzo: Sì
- Box: Posto auto coperto
- Riscaldamento: Autonomo
- Classe energetica: VA
- IPE: 185 kWh/mqa
Cerca il tuo immobile 


